Sous Compromis
Exclusivité
Ancienne Ferme à rénover entre Chasselay et Anse
Les Chères
285 000 €
Sous Compromis
Exclusivité
Vente Ferme Les Chères
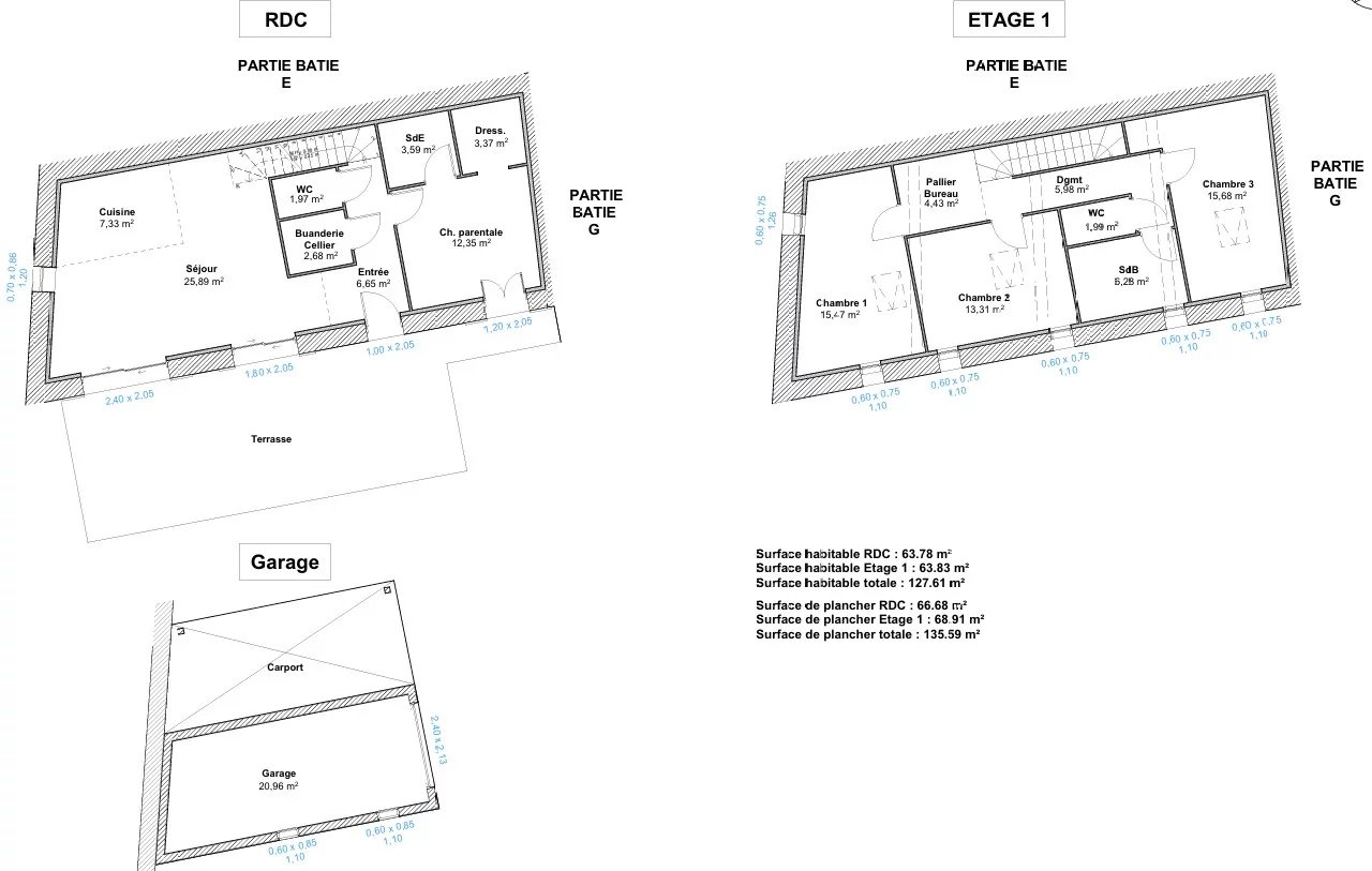
Exclusivité Yannick SAUVIGNET - Entre Chasselay et Anse... Grange à rénover offrant 135 m² habitables* sur une parcelle de 534 m². *Aménagement conçu dans le respect de la réglementation environnementale RE2020, comprenant une pièce de vie exposée plein sud, une suite de plain-pied, 3 chambres à l'étage, sde +sdb + 2 wc... garage et carports détachés.
Permis de construire en cours d'instruction.
Calme assuré, exposition plein Sud et hors lotissement
Accès direct chemin pédestre ou vtt...
Libre constructeur, mais possibilité d'un accompagnement dans votre projet de rénovation avec un de nos partenaires locaux à la réputation certifiée.
A 500 m de l'école et des commodités, 4 km de la gare de Quincieux, 5 km de la gare de St Germain et Anse, 9 km de l'accès A6 Portes de Lyon, 15 km de LYON.
Pour tous renseignements complémentaires ou visite, et pour bénéficier de conseils pertinents, avec plus de 100 terrains à bâtir vendus sur les secteurs rurbains Lyonnais, des Monts d'Or à la Calade, du Val de Saône aux Pierres Dorées, de la Vallée d'Azergues au Beaujolais... Vous pouvez contacter Yannick SAUVIGNET au 06 69 42 69 69, statut salarié, dirigeant,
Plus de Les informations sur les risques auxquels ce bien est exposé sont disponibles sur le site Géorisques : www.georisques.gouv.fr
Galerie Photo
Informations générales
-
Référence2015475
-
Pièces0 pièces
-
Surface135 m²
-
Chauffage
-
Eau
-
État
-
ExpositionSud
-
Vue
Détails des pièces
-
1 Séjour/cuisine33.00m2
-
1 Entrée6.65m2
-
1 Suite15.72m2
-
1 Chambre15.47m2
-
1 Chambre13.31m2
-
1 Chambre15.68m2
-
1 Dégagement6.00m2
-
1 Bureau4.50m2
-
1 Buanderie2.68m2
-
1 Salle de bains6.68m2
-
1 Salle de douche3.59m2
-
1 Toilettes2.00m2
-
1 Toilettes2.00m2
-
1 Garage21.00m2
Commodités
-
Aéroport
-
Autoroute
-
Bus
-
Centre ville
-
Cinéma
-
Commerces
-
École primaire
-
École secondaire
-
Gare
-
Golf
-
Hôpital/clinique
-
Lac
-
Médecin
-
Piscine publique
-
Salle de sport
-
Supermarché
Honoraires
-
Honoraires à la charge du vendeur
Partager
Demande d'informations supplémentaires
Diagnostics
Énergie - Consommation conventionnelle
En cours
Énergie - Estimation des émissions
En cours
x
