Exclusivité
Maison à rénover Vaux en Beaujolais avec vue
Vaux-en-Beaujolais
210 000 €
Exclusivité
Vente Maison de village Vaux-en-Beaujolais
En exclusivité chez VALDOR Belleville.
Maison située en plein cœur du village historique de Vaux en Beaujolais avec vue imprenable.
Prévoir une rénovation intégrale (sauf toiture).
Idéal pour un projet Airbnb avec plusieurs lots, possibilité de faire plusieurs appartements pour de l'investissement locatif ou tout simplement l'aménagement d'une maison familiale.
Surface de 180 m² habitables sur 2 niveaux + grenier aménageable de 68 m².
Garage pouvant accueillir 2 véhicules + stationnements complémentaires.
Cour de 100 m² avec dépendance aménageable en terrasse pour profiter pleinement de la vue.
Cadre de vie paisible qui bénéficie de 2 restaurants renommés.
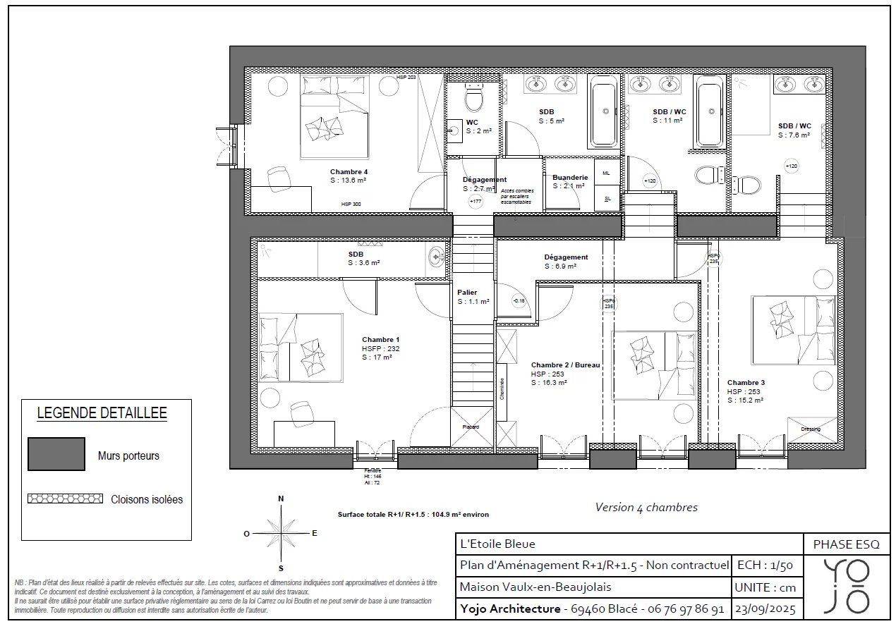
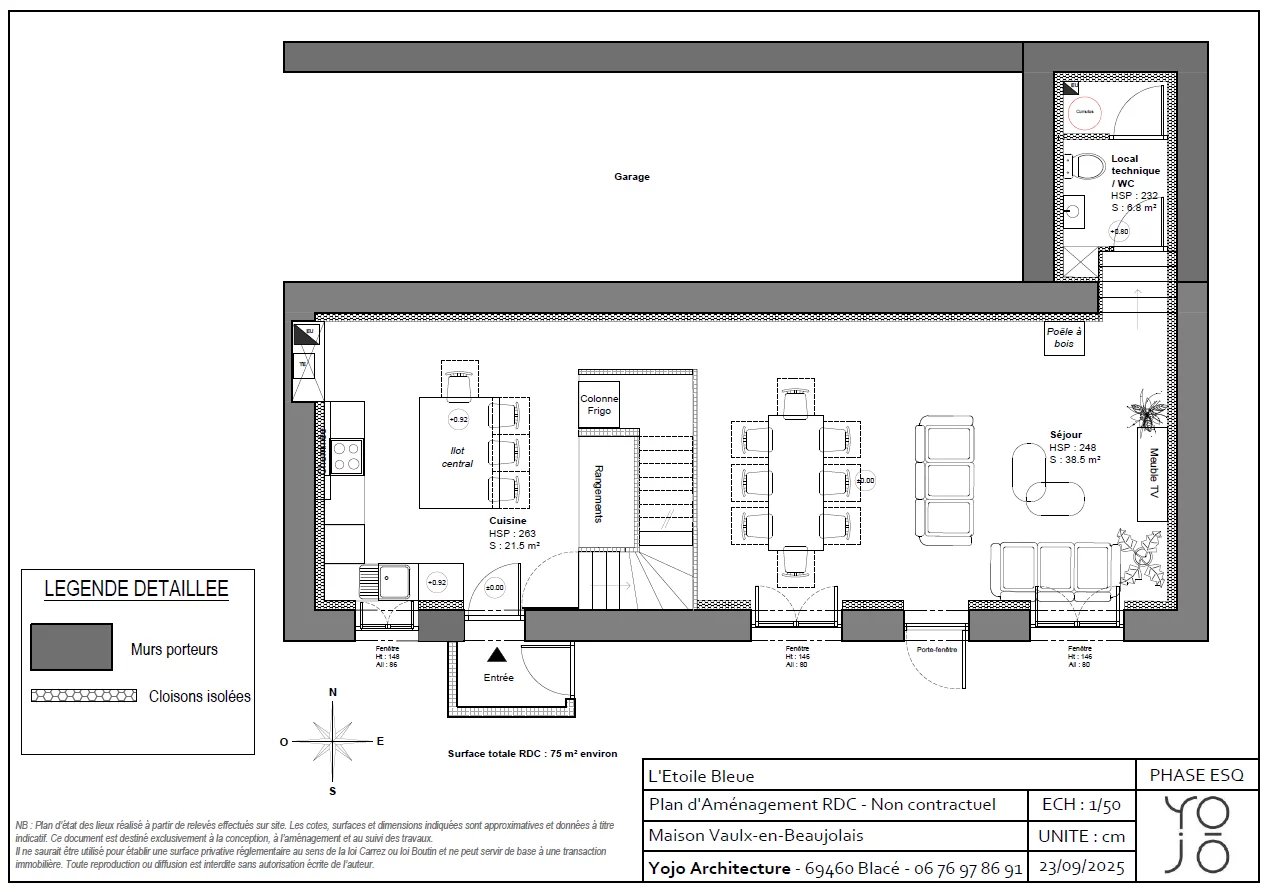
Afin de vous projeter, un architecte a déjà travaillé sur différents plans d'aménagement dont vous trouverez ci joint un exemple. Nous pouvons vous faire parvenir à la demande d'autres simulations qui ont été préparées.
Diagnostics énergie : non applicable
Diagnostics émission : non applicable
Assainissement au tout à l'égout.
Pour plus d'informations et organiser une visite merci de contacter :
Thierry BLANC au 06.47.66.58.16
Statut agent commercial EI RSAC Villefranche Sur Saône
Numéro 904 827 011
VALDOR Belleville Immobilier
7 rue de la république - 69220 Belleville-en-Beaujolais
Les informations sur les risques auxquels ce bien est exposé sont disponibles sur le site Géorisques : www.georisques.gouv.fr
Galerie Photo
Informations générales
-
Référence86801717
-
Pièces5 pièces
-
Surface180 m²
-
ChauffageSans chauffageIndividuel
-
EauIndividuelleTout à l'égout
-
ÉtatÀ rénover
-
ExpositionSud
-
VueDégagée
Détails des pièces
-
1 Garage
-
1 Dépendance
-
1 Grenier
Commodités
-
Aéroport
-
Autoroute
-
Centre ville
-
Commerces
-
École primaire
-
École secondaire
-
Gare
-
Hôpital/clinique
-
Supermarché
Honoraires
-
Honoraires à la charge du vendeur
Partager
Demande d'informations supplémentaires
Diagnostics
Énergie - Consommation conventionnelle
-2
kWhEP/m².an
kWhEP/m².an
Énergie - Estimation des émissions
-2
kg CO2/m².an
kg CO2/m².an
x
